


Objektnummer: 109240613
Mitten im aufstrebenden Stadtteil Atzgersdorf im 23. Bezirk in Wien bietet die Fabrik1230 moderne, flexibel gestaltbare Büro-, Ordinations- und Gewerbeflächen in einem außergewöhnlichen Ambiente. Die Kombination aus historischem Industriecharme und zeitgemäßer Architektur schafft ein inspirierendes Arbeitsumfeld. Darüber hinaus ist das Gebäude mit der ÖGNI-Platin-Zertifizierung ausgezeichnet, was höchste Standards in Nachhaltigkeit, Energieeffizienz und Nutzerkomfort gewährleistet. Die Anbindung an den öffentlichen und individuellen Verkehr garantiert beste Erreichbarkeit. Zusätzlich stehen 42 Stellplätze in der Tiefgarage zur Verfügung. Das Projekt umfasst rund 4.000 m² Büroflächen, ein 1.400 m² großes Gesundheitszentrum mit Apotheke sowie vielseitige Veranstaltungsbereiche. Großzügige Terrassen mit grünen Akzenten schaffen eine angenehme Atmosphäre und fördern die Work-Life-Balance. Ein Fitnesscenter sowie die geplante Gastronomie im historischen Gebäudeteil runden das Angebot ab.
Verfügbare Büroflächen:
1. OG, Top 02.101, ca. 157,65 m²
1. OG, Top 02.102, ca. 102,98 m²
1. OG, Top 03.101, ca. 98,06 m²
3. OG, Top 02.301, ca. 504,84 m² + ca. 258,18 m² Terrasse
3. OG, Top 01.308, ca. 84,17 m²
4. OG, Top 02.401, ca. 432,05 m² + ca. 9,62 m² Terrasse
4. OG, Top 01.402, ca. 445,54 m² + 9,62 m² Terrasse
4. OG, Top 01.401, ca. 170,11 m²
5. OG, Top 02.501, ca. 365,61 m² + 102,86 m² Terrasse
5. OG, Top 01.501, ca. 316,51 m² + 62,60 m² Terrasse
Nettomiete/m²/Monat: € 14,00 - € 18,00
Verfügbare Ordinationsflächen:
2. OG, Top 01.202.8, ca. 29,76 m²
2. OG, Top 01.202.7, ca. 23,85 m²
2. OG, Top 01.202.6, ca. 23,89 m²
2. OG, Top 01.202.5, ca. 24,24 m²
2. OG, Top 01.202.4, ca. 24,28 m²
2. OG, Top 01.202.3, ca. 23,92 m²
Nettomiete/m²/Monat: € 25,00
Verfügbare Ordinationsfläche:
3. OG, Top 01.302, ca. 163,83 m² + 54,79 m² Terrasse
Betriebskostenakonto/netto/m²/Monat: dzt. ca. € 3,00
Terrasse Nettomiete/m²/Monat: € 5,00
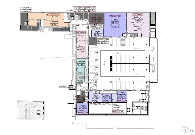
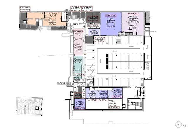
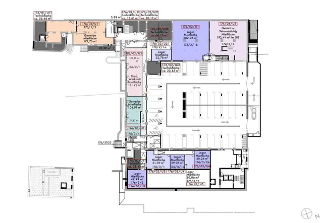
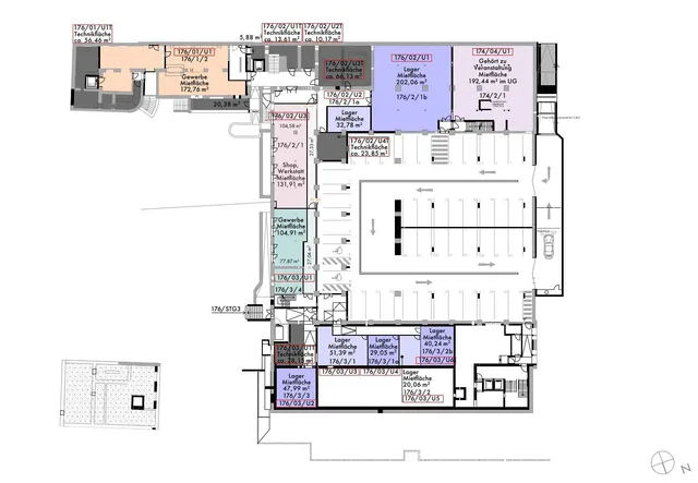
UG, Top 02.01, ca. 202,06 m² - Lager
UG, Top 02.02, ca. 40,65 m² - Lager
UG, Top 02.03, ca. 131,91 m² - Shop, Werkstatt
UG, Top 03.01, ca. 104,91 m² - Gewerbe
UG, Top 01.01, ca. 172,76 m² - Gewerbe
Nettomiete/m²/Monat: € 6,00 – € 8,00
Miete Stellplatz zu je € 120,00 zzgl. Betriebskosten iHv ca. € 30 zzgl. USt (p. M.)
Elektrischer außenliegender, südseitiger Sonnenschutz
Teppichbelag (Farbauswahl durch mietende Partei) auf Doppelboden mit Bodendosen (2 EDV, 2 Schuko und 2 RJ45-Datenanschlüsse, Vorbereitung für CAT7 je Dose) im Bürobereich
Feinsteinzeug im ausgestatteten Sanitärbereich
Terrassen mit Holzbelag
Sichtbare Stahlbetondecke
Anschlüsse für Teeküchen im Bürobereich
Heiz- und Kühlsystem über Betonkernaktivierung und Fußbodenheizung im Sanitärbereich Mechanische Be- und Entlüftung (ca. 2 bis 5-facher Luftwechsel) mit vorkonditionierter Luft








U-Bahn: U6
Bus: 62A, 64A
S-Bahn: S2, S3, S4
Wir sind eine Tochtergesellschaft der ÖRAG-Österreichische Realitäten AG, Wien, genannt ÖRAG, und es besteht daher unter Umständen ein sonstiges wirtschaftliches Naheverhältnis im Sinne des Maklergesetzes zur ÖRAG und ihren anderen Tochtergesellschaften in Österreich. Das Naheverhältnis zur ÖRAG ergibt sich zB aus der Tatsache, dass die ÖRAG das Objekt für den Eigentümer verwaltet. Es kann aber auch ein wirtschaftliches Naheverhältnis im Sinne des Maklergesetzes zum Auftraggeber, also dem bzw. den Eigentümern bestehen, wenn wir laufend bzw. regelmäßig für diesen Auftraggeber als Makler tätig werden. Sollten Sie diesbezüglich Fragen haben oder eine weitere Aufklärung wünschen, wenden Sie sich bitte direkt an unseren Mitarbeiter.
Die ÖRAG Immobilien Vermittlung GmbH wird als Doppelmakler tätig.
Weitere Immobilien finden Sie auf unserer Website www.oerag.at.