


Objektnummer: 109251011
Im Zentrum steht das denkmalgeschützte Gasthaus „Alte Knödelhütte“, das unter dem Namen „KnödelWILLA“ mit neuem Leben erfüllt wird. Dabei bleibt die historische Bedeutung dieses architektonischen Schmuckstücks erhalten und erhält zugleich einen modernen, stilvollen Charakter.
Harmonisch ergänzt wird die KnödelWILLA von zwei eleganten Neubauten – der „WanderWILLA“ und der „WaldWILLA“. Ihr Design greift die charakteristischen Merkmale des Bestandsgebäudes auf und schafft so ein exklusives, stimmiges Gesamtensemble von außergewöhnlicher Qualität.
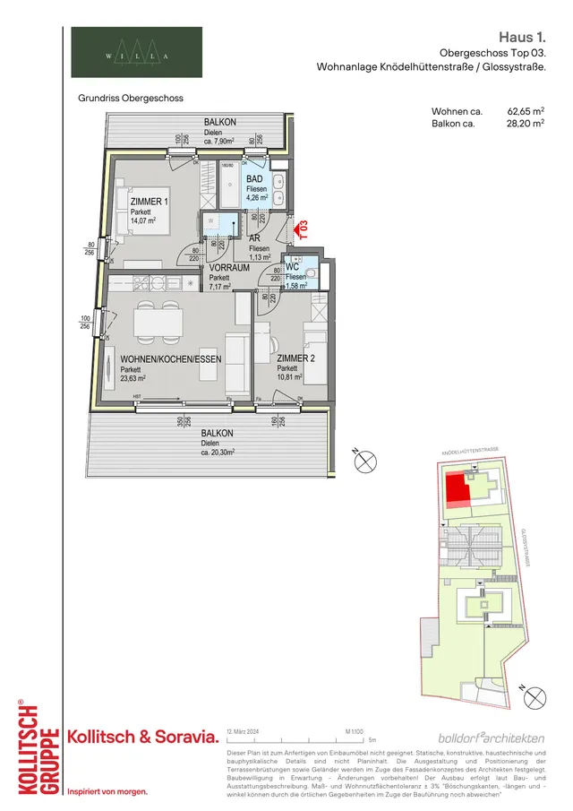
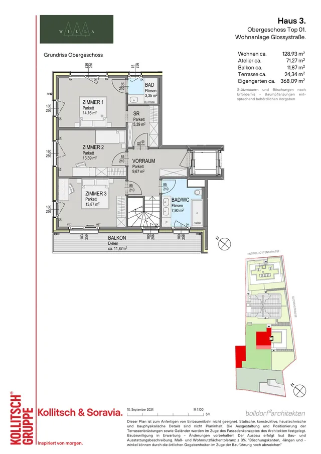
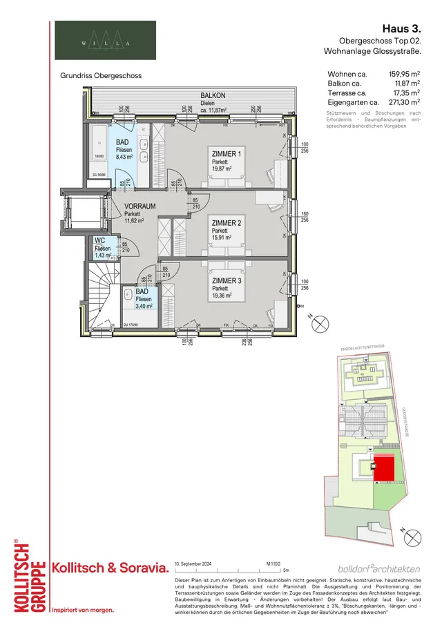
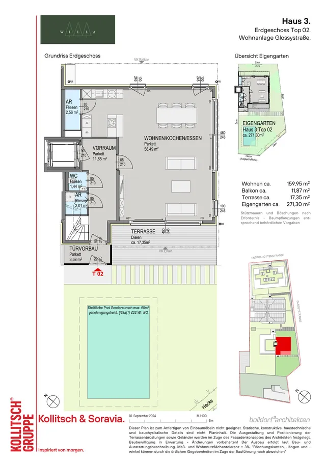
Insgesamt entstehen 13 exklusive, nachhaltige und barrierefreie Eigentumswohnungen mit Wohnflächen zwischen großzügigen 62 und beeindruckenden 222 m². Jede Einheit verfügt über mindestens eine private Außenfläche, die zum entspannten Verweilen im Grünen einlädt.
Das exklusive Projekt liegt am Rande des Wienerwalds Ecke Glossystraße / Knödelhüttenstraße.
Errichtet werden 3 Wohnhäuser mit insgesamt 13 Einheiten
WanderWilla - Haus 1
KnödelWilla- Haus 2
WaldWilla - Haus 3
Für höchsten Wohnkomfort sorgen modernste technische Ausstattungen: Die Beheizung erfolgt über eine hocheffiziente Erdwärmepumpe mit Fußbodenheizung und bauteilaktivierten Decken – vollautomatisch und umweltschonend.
Eine Photovoltaikanlage gewährleistet niedrige Energiekosten und nachhaltiges Wohnen.
Im Innenbereich überzeugen Landhausdielen oder edles Fischgrätparkett sowie eine hochwertige Ausstattung, die sowohl zeitlose Eleganz als auch Wohnqualität auf höchstem Niveau garantiert.
Die Terrassen sind mit Holzdielen versehen und Sonnenschutzkästen mit elektrisch gesteuerten Raffstores sorgen für optimalen Licht- und Hitzeschutz.
Im Untergeschoß liegen 14 Tiefgaragen-Stellplätze, die Technikräume, Einlagerungsräume sowie Fahrrad- und Kinderwagenabstellraum.













Das WILLA Projekt besticht durch seine einzigartige Lage direkt am Wienerwald, wo sich naturnahe Idylle und exklusive Wohnqualität harmonisch vereinen.
Eingebettet in eine grüne Oase, erleben Sie hier ein unvergleichliches Gefühl von Ruhe und Geborgenheit – fernab vom städtischen Trubel und doch mit perfekter Anbindung an das urbane Leben Wiens.
Die unmittelbare Umgebung ist geprägt von Wiesen, Wäldern und weitläufigen Erholungsflächen – perfekt für alle, die das Leben im Grünen lieben, ohne auf urbane Infrastruktur verzichten zu wollen.
Die Nähe zum Wienerwald eröffnet vielfältige Möglichkeiten für Freizeit und Erholung: Ob ausgedehnte Wanderungen zur Jubiläumswarte, anspruchsvolle Mountainbike-Touren auf der Franz-Karl-Fernsicht- oder Hameau-Strecke, oder entspannte Spaziergänge entlang des Wienflusswegs – hier kommen Naturliebhaber voll auf ihre Kosten.
Auch kulturelle Highlights wie das Schloss Laudon oder das Ernst-Fuchs-Museum sind in greifbarer Nähe.
Für den Alltag stehen Ihnen sämtliche Annehmlichkeiten in fußläufiger Entfernung zur Verfügung:
Die Bushaltestelle 52A erreichen Sie bereits nach 70 Metern, ein Spar-Supermarkt liegt ca. 600 Meter entfernt, Kindergärten und Schulen sind ebenfalls bequem erreichbar. Die schnelle Verbindung zur U-Bahn und Schnellbahn in Wien Hütteldorf (ca. 3,1 km) gewährleistet Mobilität und Komfort.
Diese exklusive Wohnlage verbindet das Beste aus beiden Welten: ein privates Refugium inmitten grüner Natur und gleichzeitig eine hervorragende städtische Infrastruktur.
Ein Standort, der Lebensqualität neu definiert.
Wir sind eine Tochtergesellschaft der ÖRAG-Österreichische Realitäten AG, Wien, genannt ÖRAG, und es besteht daher unter Umständen ein sonstiges wirtschaftliches Naheverhältnis im Sinne des Maklergesetzes zur ÖRAG und ihren anderen Tochtergesellschaften in Österreich. Das Naheverhältnis zur ÖRAG ergibt sich zB aus der Tatsache, dass die ÖRAG das Objekt für den Eigentümer verwaltet. Es kann aber auch ein wirtschaftliches Naheverhältnis im Sinne des Maklergesetzes zum Auftraggeber, also dem bzw. den Eigentümern bestehen, wenn wir laufend bzw. regelmäßig für diesen Auftraggeber als Makler tätig werden. Sollten Sie diesbezüglich Fragen haben oder eine weitere Aufklärung wünschen, wenden Sie sich bitte direkt an unseren Mitarbeiter.
Die ÖRAG Immobilien Vermittlung GmbH wird als Doppelmakler tätig.
Weitere Immobilien finden Sie auf unserer Website www.oerag.at.