

Objektnummer: 109258139
In der Waltendorfer Hauptstraße 55a und 55b, 8010 Graz, entsteht mit dem Wohnprojekt „BELA“ ein hochwertiges Neubauprojekt in einer der gefragtesten Wohnlagen von Graz-Waltendorf. Das Projekt vereint moderne Architektur, effiziente Grundrisse und großzügige Freiflächen zu einem zeitgemäßen Wohnkonzept für Eigennutzer und Anleger.
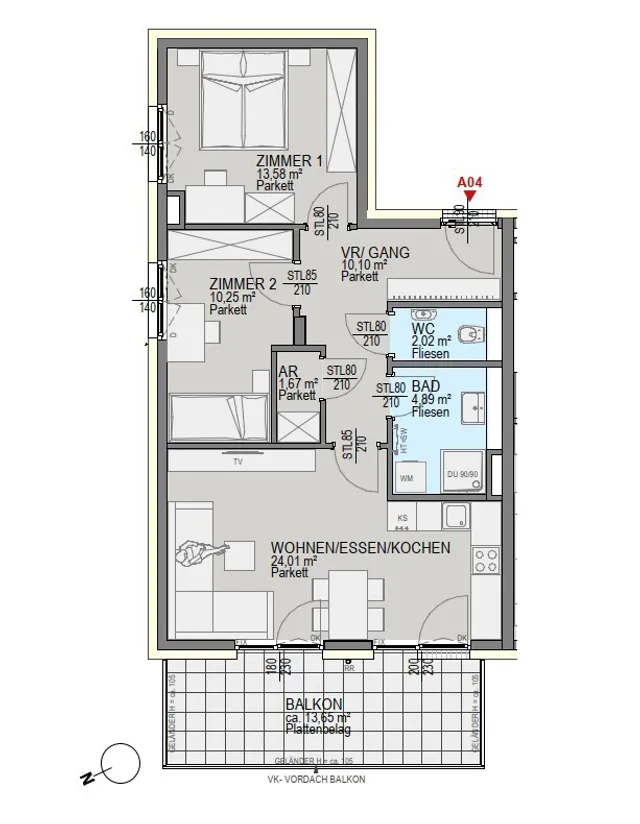
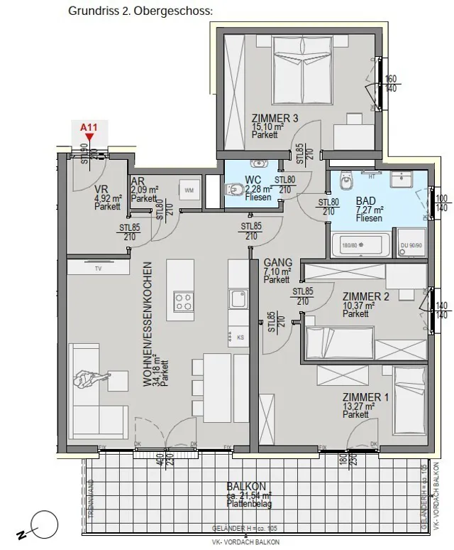
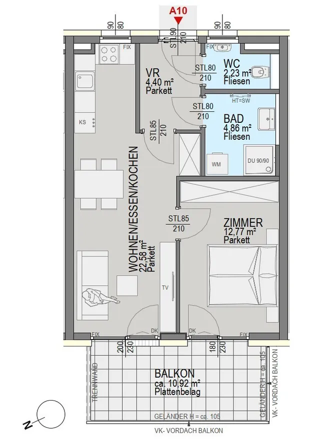
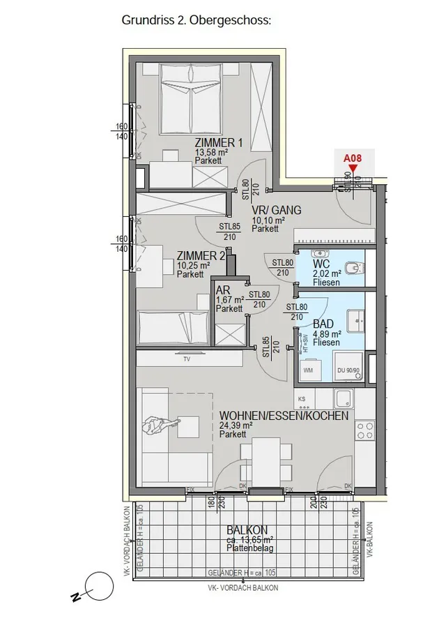
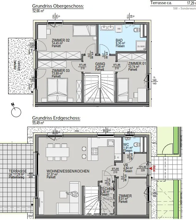
In der Waltendorfer Hauptstraße 55a wird ein modernes Wohnhaus mit 12 Eigentumswohnungen realisiert. Das Gebäude gliedert sich in Erdgeschoß, zwei Obergeschoße sowie ein exklusives Penthouse im 3. Obergeschoß. Die Wohnungen verfügen über Wohnflächen von ca. 46,96 m² bis 102,76 m² und bieten 2- bis 4-Zimmer-Grundrisse. Sämtliche Einheiten sind mit attraktiven privaten Freiflächen ausgestattet – in Form von Balkonen, Terrassen oder Eigengärten. Das Penthouse besticht insbesondere durch seine großzügige Dachterrasse. Jeder Wohnung ist ein Kellerabteil zugeordnet, zudem stehen Tiefgaragen- und Außenstellplätze zur Verfügung.
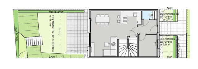
Ergänzend dazu entstehen in der Waltendorfer Hauptstraße 55b vier moderne Reihenhäuser, die ein urbanes Wohnen mit ausgeprägtem Hauscharakter ermöglichen. Die zweigeschoßigen Häuser bieten Wohnflächen zwischen ca. 106,22 m² und 108,24 m² und verfügen jeweils über Balkon, Terrasse sowie einen privaten Garten mit großzügigen Grünflächen. Auch den Reihenhäusern sind Kellerflächen sowie zugeordnete Stellplätze zugewiesen.
Die Wohnung befindet sich im hochwertigen Neubauprojekt „BELA“ in einer ruhigen und begehrten Wohnlage von 8010 Graz-Waltendorf und überzeugt durch eine durchdachte Raumaufteilung sowie hochwertige Ausstattung.
- Heller, offener Wohn- und Essbereich mit offener Küche
- Drei ideal geschnittene Schlafzimmer
- Ein Badezimmer, das keine Wünsche offen lässt (Badewanne und separate Dusche)
- vielseitig nutzbarer Abstellraum
- Weitläufige Terrasse mit atemberaubender Panoramaaussicht
- Kellerabteil für zusätzlichen Platz
- Tiefgaragenplätze mit Vorbereitung für E-Charger
















Das Projekt „BELA“ überzeugt durch seine ruhige, dennoch hervorragend angebundene Lage. Einkaufsmöglichkeiten, öffentliche Verkehrsmittel, Schulen, Kinderbetreuungseinrichtungen sowie Naherholungsgebiete befinden sich in unmittelbarer Umgebung.
Wir sind eine Tochtergesellschaft der ÖRAG-Österreichische Realitäten AG, Wien, genannt ÖRAG, und es besteht daher unter Umständen ein sonstiges wirtschaftliches Naheverhältnis im Sinne des Maklergesetzes zur ÖRAG und ihren anderen Tochtergesellschaften in Österreich. Das Naheverhältnis zur ÖRAG ergibt sich zB aus der Tatsache, dass die ÖRAG das Objekt für den Eigentümer verwaltet. Es kann aber auch ein wirtschaftliches Naheverhältnis im Sinne des Maklergesetzes zum Auftraggeber, also dem bzw. den Eigentümern bestehen, wenn wir laufend bzw. regelmäßig für diesen Auftraggeber als Makler tätig werden. Sollten Sie diesbezüglich Fragen haben oder eine weitere Aufklärung wünschen, wenden Sie sich bitte direkt an unseren Mitarbeiter.
Die ÖRAG Immobilien Vermittlung GmbH wird als Doppelmakler tätig.
Weitere Immobilien finden Sie auf unserer Website www.oerag.at.