


Objektnummer: 109251203
Zukunftsweisendes Neubauprojekt in zentraler Lage am Hauptplatz in Schwechat
Attraktive Wohneinheiten für Eigennutzer oder Anleger
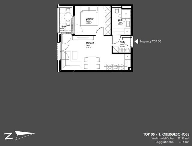
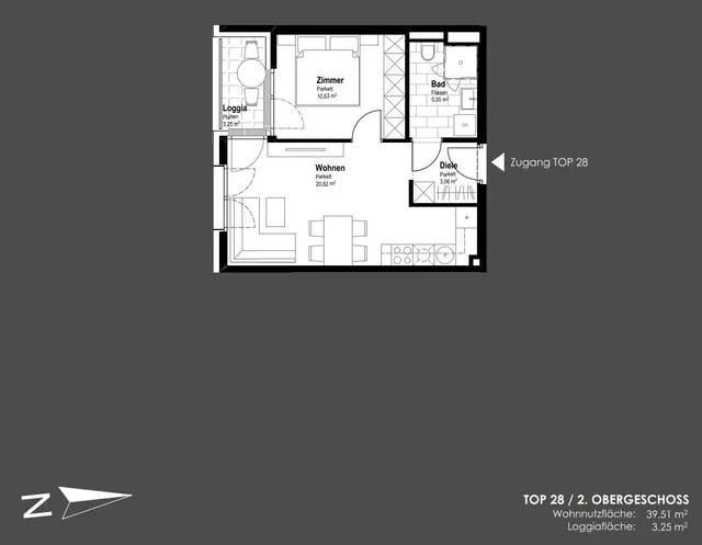
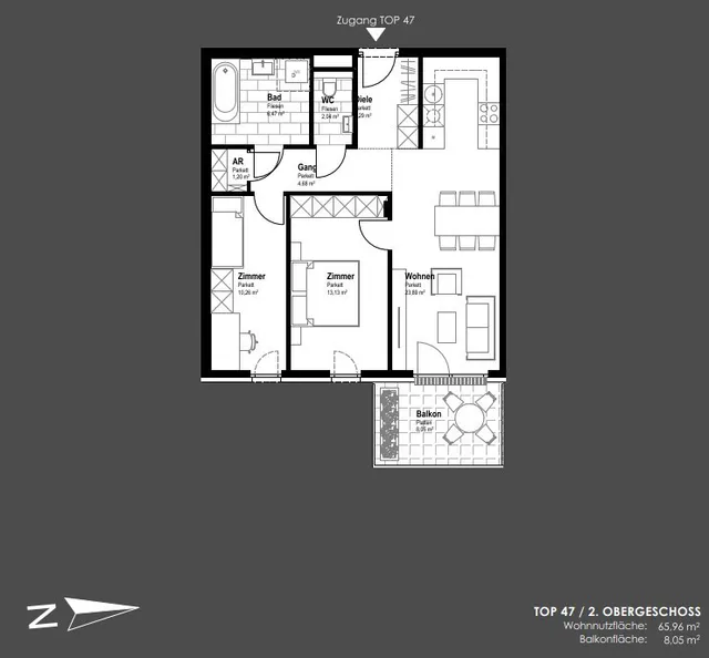
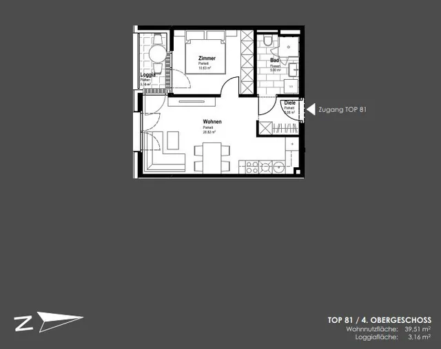
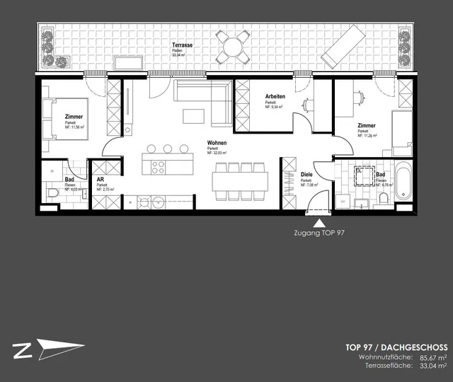
Hier entstehen 100 Wohnungen mit ca. 28 m² bis ca. 123 m² mit 2 bis 5 Zimmern und Freiflächen sowie Büros und Geschäftsflächen.
Die Wohnbereiche zeichnen sich durch innovative und sorgfältige architektonische Planung sowie durch die Verwendung hochwertiger Materialien aus.
Nachhaltiges, zukunftssicheres und effizientes Energiekonzept
- Luftwärmepumpe und Fernwärme
- Fußbodenheizung im Erdgeschoß
- Heizung/Kühlung mittels Bauteilaktivierung in den Obergeschossen
- Elektrische Fußbodenheizung in den Bädern
- Photovoltaikanlage für die Stromversorgung der Allgemeinflächen
Es besteht die Möglichkeit, einen Stellplatz in der Tiefgarage zu erwerben; Kaufpreis für Eigennutzer € 25.500.
Sie sind interessiert - senden Sie uns bitte eine Anfrage.
Projekt aus massivem Stahlbeton mit klarer Architektur
- Hochwertige Ausstattung & Materialien wie langlebige Böden
- Nachhaltiges Energiekonzept
- Großzügige Fensterflächen
- 3fach Verglasung sorgt für Ruhe und ein angenehmes Raumklima
- Elektrischer Sonnenschutz
- Tiefgarage mit 150 Stellplätzen
- Einlagerungsräume als Zubehör je Wohnung
- Kinderwagen- und Fahrradabstellraum im 1. UG
- Fahrradabstellflächen im EG
- barrierefreie Aufzüge


















Die top Lage am Hauptplatz verspricht kurze Wege zu den Nahversorgern.
Direkt im Zentrum von Schwechat gelegen finden Sie Einkaufsmöglichkeiten, Gastronomie, Schulen, Ärzte und auch die öffentlichen Verkehrsmittel nur wenige Meter entfernt.
Der Standort profitiert von der kurzen Distanz zum Flughafen Wien Schwechat - aber auch von der top Verkehrsanbindung zur S1 und A4. Die S-Bahn und diverse Buslinien garantieren den perfekten Anschluss nach Wien.
Das Projekt verspricht modernes Wohnen vor den Toren Wiens
Hier finden Sie hohe Lebensqualität ohne Großstadthektik.
Unkomplizierte Mobilität, Radwege, Parks und Veranstaltungen prägen das aktive Leben in Schwechat.
Wir sind eine Tochtergesellschaft der ÖRAG-Österreichische Realitäten AG, Wien, genannt ÖRAG, und es besteht daher unter Umständen ein sonstiges wirtschaftliches Naheverhältnis im Sinne des Maklergesetzes zur ÖRAG und ihren anderen Tochtergesellschaften in Österreich. Das Naheverhältnis zur ÖRAG ergibt sich zB aus der Tatsache, dass die ÖRAG das Objekt für den Eigentümer verwaltet. Es kann aber auch ein wirtschaftliches Naheverhältnis im Sinne des Maklergesetzes zum Auftraggeber, also dem bzw. den Eigentümern bestehen, wenn wir laufend bzw. regelmäßig für diesen Auftraggeber als Makler tätig werden. Sollten Sie diesbezüglich Fragen haben oder eine weitere Aufklärung wünschen, wenden Sie sich bitte direkt an unseren Mitarbeiter.
Die ÖRAG Immobilien Vermittlung GmbH wird als Doppelmakler tätig.
Weitere Immobilien finden Sie auf unserer Website www.oerag.at.