


Objektnummer: 109251155
Willkommen in Ihrem neuen Zuhause in Graz-Straßgang!
In diesem modernen Neubauensemble erwarten Sie hochwertig ausgestattete Eigentumswohnungen mit Wohnflächen zwischen ca. 44,68 m² und 113,73 m². Die durchdachten Grundrisse sorgen für ein helles, offenes Wohngefühl und schaffen ein komfortables Zuhause für Singles, Paare und Familien.
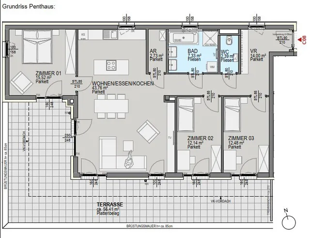
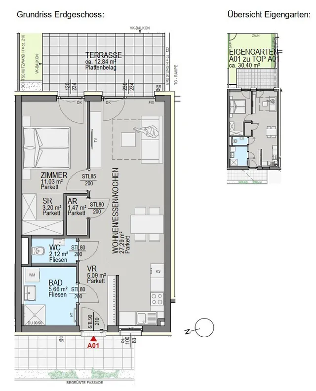
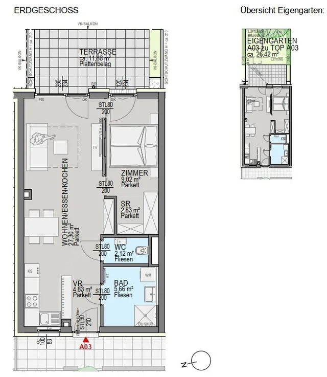
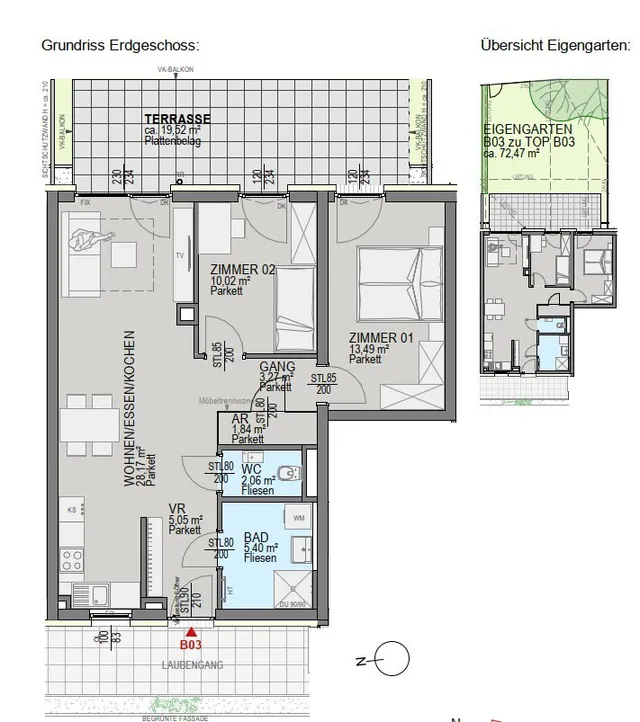
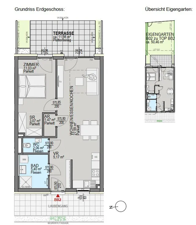
Je nach Wohnungstyp genießen Sie einen Balkon, einen eigenen Garten mit Terrasse oder – im exklusiven Penthouse – eine großzügige Dachterrasse. Diese privaten Freiflächen bieten ideale Voraussetzungen für entspannte Stunden im Freien und erweitern Ihren Wohnraum auf angenehme Weise.
Die Wohnungen überzeugen durch stilvolle Bäder mit modernen Armaturen, hochwertige Materialien und klare Raumaufteilungen, die ein behagliches Wohnambiente schaffen. Ein Kellerabteil sorgt für zusätzlichen Stauraum.
Für noch mehr Komfort können Parkplätze um € 25.500 bis € 29.000 erworben werden.
Hier entsteht ein Wohnprojekt, das modernes Design, hochwertige Bauweise und eine ruhige Lage perfekt miteinander verbindet – ideal für alle, die in Graz-Straßgang ein neues Zuhause mit hoher Lebensqualität suchen.
Die Wohnungen befinden sich in einer ruhigen Lage in 8054 Graz-Straßgang und überzeugen mit folgenden Highlights:
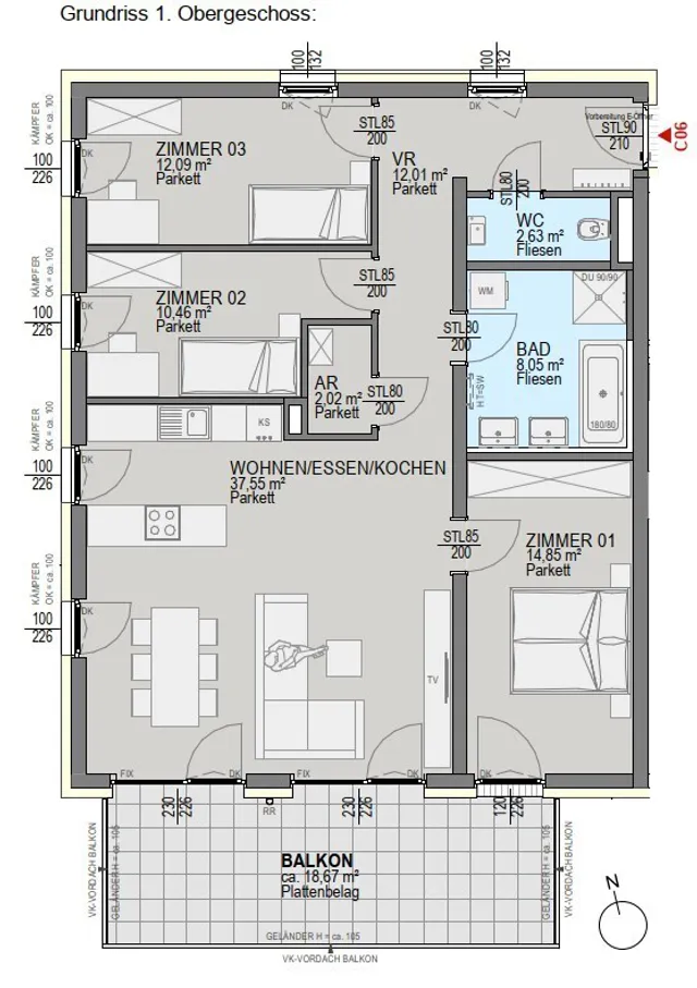
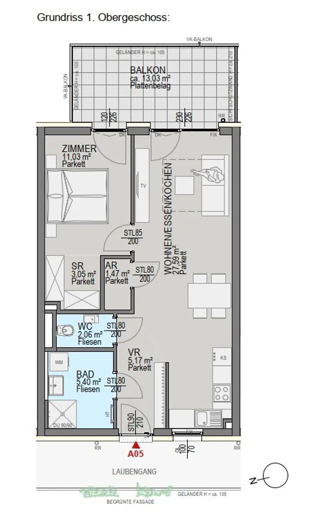
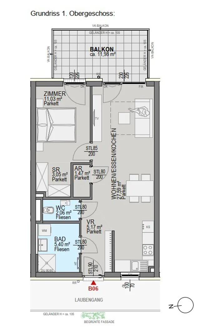
Wohnflächen zwischen ca. 44,68 m² und 113,73 m²
heller, offener Wohn- und Essbereich mit moderner Gestaltung
1 bis 3 ideal geschnittene Schlafzimmer, je nach Wohnungstyp
stilvolle, hochwertig ausgestattete Badezimmer
praktischer Abstellraum bzw. zusätzlicher Stauraum in vielen Einheiten
attraktive Freiflächen wie Balkone, Gärten mit Terrasse oder großzügige Dachterrassen im Penthouse
Kellerabteil zu jeder Wohnung










































Die angebotene Wohnung liegt im südwestlichen Teil von Graz, nah am Stadtzentrum und der Natur. Diese Lage bietet eine ideale Mischung aus städtischem und ruhigem Leben. Das Stadtzentrum ist schnell erreichbar, und in der Nähe gibt es zahlreiche Einkaufsmöglichkeiten. Schulen und öffentliche Verkehrsmittel befinden sich in kurzer Distanz, was es besonders familienfreundlich macht. Die ausgezeichnete Verkehrsanbindung rundet das Angebot ab. Perfekt für alle, die eine harmonische Balance zwischen Stadtleben und Natur in Graz suchen.
Wir sind eine Tochtergesellschaft der ÖRAG-Österreichische Realitäten AG, Wien, genannt ÖRAG, und es besteht daher unter Umständen ein sonstiges wirtschaftliches Naheverhältnis im Sinne des Maklergesetzes zur ÖRAG und ihren anderen Tochtergesellschaften in Österreich. Das Naheverhältnis zur ÖRAG ergibt sich zB aus der Tatsache, dass die ÖRAG das Objekt für den Eigentümer verwaltet. Es kann aber auch ein wirtschaftliches Naheverhältnis im Sinne des Maklergesetzes zum Auftraggeber, also dem bzw. den Eigentümern bestehen, wenn wir laufend bzw. regelmäßig für diesen Auftraggeber als Makler tätig werden. Sollten Sie diesbezüglich Fragen haben oder eine weitere Aufklärung wünschen, wenden Sie sich bitte direkt an unseren Mitarbeiter.
Die ÖRAG Immobilien Vermittlung GmbH wird als Doppelmakler tätig.
Weitere Immobilien finden Sie auf unserer Website www.oerag.at.