


Objektnummer: 109242565
Die Wohnungen werden auf 5 Jahre befristet vermietet. Kündigungsverzicht 1 Jahr.
Die Nebenkosten (Strom, Heizung und Wasser) sind verbrauchsabhängig und fallen zusätzlich an.
Bei den Fotos handelt es sich um Visualisierungen, die Wohnungen werden nicht möbliert vermietet!
Die Ausstattung ist exquisit und modern.
Die einladende Fassade ist begrünt, eine Klinkerfassade steht im spannenden Wechsel mit Beton-, Eternit- und Glaselementen. 3-fach-verglaste Holz-Alufenster mit Außenbeschattung sorgen für Energieeffizienz. Alle Wohnungen im 2. Dachgeschoß verfügen über eine Deckenkühlung.
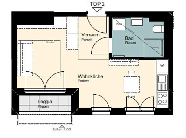
Die einzelnen Wohnungen sind mit hochwertigen Steirer Parkettböden, modernen Küchen und eleganten Bädern mit Duravit Sanitärausstattungen ausgestattet.
Die Einlagerungsräume, der Fahrrad- und Kinderwagenabstellplatz sowie die Autostellplätze (tlw. auch E-Stellplätze) befinden sich im Kellergeschoß und sind bequem mit dem Lift zu erreichen.
Ein Spielraum sowie der Müllraum befinden sich im Erdgeschoß.
Die effiziente und kostengünstige Energieversorgung erfolgt über eine Wärmepumpe mit Tiefenbohrung und einer Photovoltaik-Anlage. Das Gebäude erhält eine ÖGNI Zertifizierung Gold.
©Denzel Immobilien GmbH / ©Toni Rappersberger









Die öffentliche Verkehrsanbindung ist ausgezeichnet: Die U-Bahn-Linie U3 (Station Enkplatz) liegt nur wenige Gehminuten entfernt und gewährleistet eine direkte Verbindung in das Wiener Stadtzentrum. Ergänzend sorgen mehrere Bus- und Straßenbahnlinien für eine optimale Erreichbarkeit im Nahbereich. Für den Individualverkehr ist die Anbindung über die Simmeringer Hauptstraße sowie die nahe Südosttangente (A23) sehr gut.
Das Umfeld vereint urbane Lage mit hoher Wohn- und Lebensqualität. Zahlreiche Grün- und Erholungsflächen, wie der nahegelegene Herderpark oder der Zentralfriedhof mit seinen weitläufigen Wegen, tragen zur Attraktivität des Standorts bei. Insgesamt bietet die Adresse eine ausgewogene Mischung aus zentraler Lage, praktischer Infrastruktur und guter Anbindung.
Wir sind eine Tochtergesellschaft der ÖRAG-Österreichische Realitäten AG, Wien, genannt ÖRAG, und es besteht daher unter Umständen ein sonstiges wirtschaftliches Naheverhältnis im Sinne des Maklergesetzes zur ÖRAG und ihren anderen Tochtergesellschaften in Österreich. Das Naheverhältnis zur ÖRAG ergibt sich zB aus der Tatsache, dass die ÖRAG das Objekt für den Eigentümer verwaltet. Es kann aber auch ein wirtschaftliches Naheverhältnis im Sinne des Maklergesetzes zum Auftraggeber, also dem bzw. den Eigentümern bestehen, wenn wir laufend bzw. regelmäßig für diesen Auftraggeber als Makler tätig werden. Sollten Sie diesbezüglich Fragen haben oder eine weitere Aufklärung wünschen, wenden Sie sich bitte direkt an unseren Mitarbeiter. Der guten Ordnung halber weisen wir darauf hin und halten fest, dass wir für den Auftraggeber (Vermieter) tätig werden.
Ein Maklervertrag mit dem wohnungssuchenden Mieter kommt nicht zustande, weswegen der Mieter auch bei erfolgreicher Vermittlungstätigkeit der ÖRAG nicht zur Zahlung einer Provision verpflichtet ist.
Weitere Immobilien finden Sie auf unserer Website www.oerag.at.