


Objektnummer: 109251504
In the heart of the up-and-coming Atzgersdorf district in Vienna's 23rd district, Fabrik1230 offers modern, flexible office, surgery and commercial space in an exceptional setting. The combination of historic industrial charm and contemporary architecture creates an inspiring working environment. The building has also been awarded ÖGNI Platinum certification, which guarantees the highest standards of sustainability, energy efficiency and user comfort. The connection to public and private transport guarantees excellent accessibility. In addition, 42 parking spaces are available in the underground garage. The project comprises around 4,000 m² of office space, a 1,400 m² health center with a pharmacy and versatile event areas. Spacious terraces with green accents create a pleasant atmosphere and promote a good work-life balance. A fitness center and the planned restaurant in the historic part of the building round off the offer.
Available space:
Ground floor, Top 02.01, approx. 674.17 m² gastronomy + approx. 100 m² terrace
Ground floor, Top 02.02, approx. 264.12 m² gastronomy + approx. 100 m² terrace
Ground floor, Top 01.02, approx. 123.06 m² retail
1st floor, Top 02.101, approx. 157.65 m² - gallery (gastronomy)
1st floor, Top 02.102, approx. 102.98 m² - gallery (gastronomy)
1st floor, Top 03.101, approx. 98.06 m² - gallery (gastronomy)
Net rent/m²/month: € 14.00 - € 15.00
Basement, Top 02.01, approx. 202.06 m² - warehouse
Basement, Top 02.02, approx. 40.65 m² - warehouse
UG, Top 02.03, approx. 131.91 m² - store, workshop
UG, Top 03.01, approx. 104.91 m² - Commercial
UG, Top 01.01, approx. 172.76 m² - Commercial
Net rent/m²/month: € 6.00 - € 8.00
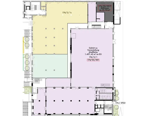
Available space event hall:
Basement, Top 02.U01, approx. 192.44 m² (storage)
Ground floor, Top 02.01, approx. 1,497.42 m² (event)
1st floor, Top 02.101, approx. 311.32 m² (gallery and office)
Net rent/m²/month: € 6.50 - € 7.50
Operating costs/net/m²/month: currently approx. € 3.00
Storage space of between 21 m² and 52 m² is available in the basement at € 8.00/m² plus VAT p.m. and is rented including any operating and ancillary costs.
Rent for parking space at € 120 each plus operating costs of approx. € 30 plus VAT (p.m.)
Electric external, south-facing sun protection
Carpeting (color selection by renting party) on raised floor with floor sockets (2 EDP, 2 Schuko and 2 RJ45 data connections, preparation for CAT7 per socket) in the office area
Porcelain stoneware in the equipped sanitary area
Terraces with wooden flooring
Visible reinforced concrete ceiling
Connections for kitchenettes in the office area
Heating and cooling system via concrete core activation and underfloor heating in the sanitary area Mechanical ventilation (approx. 2 to 5-fold air exchange) with preconditioned air





Subway: U6
Bus: 62A, 64A
S-Bahn: S2, S3, S4
Wir sind eine Tochtergesellschaft der ÖRAG-Österreichische Realitäten AG, Wien, genannt ÖRAG, und es besteht daher unter Umständen ein sonstiges wirtschaftliches Naheverhältnis im Sinne des Maklergesetzes zur ÖRAG und ihren anderen Tochtergesellschaften in Österreich. Das Naheverhältnis zur ÖRAG ergibt sich zB aus der Tatsache, dass die ÖRAG das Objekt für den Eigentümer verwaltet. Es kann aber auch ein wirtschaftliches Naheverhältnis im Sinne des Maklergesetzes zum Auftraggeber, also dem bzw. den Eigentümern bestehen, wenn wir laufend bzw. regelmäßig für diesen Auftraggeber als Makler tätig werden. Sollten Sie diesbezüglich Fragen haben oder eine weitere Aufklärung wünschen, wenden Sie sich bitte direkt an unseren Mitarbeiter.
Die ÖRAG Immobilien Vermittlung GmbH wird als Doppelmakler tätig.
Weitere Immobilien finden Sie auf unserer Website www.oerag.at.