


Objektnummer: 109258304
The furnishings are modern and exclusive.
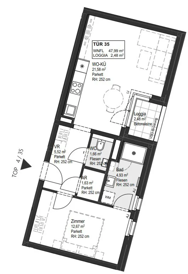
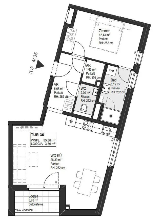
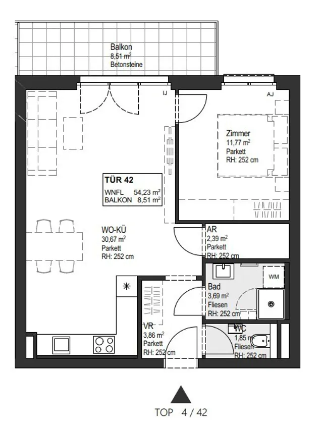
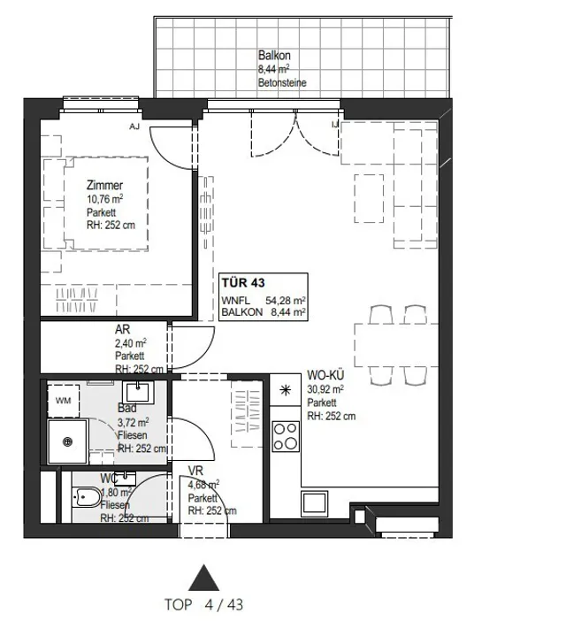
All apartments are fitted with oak parquet flooring and 30x60 porcelain stoneware tiles, the exterior surfaces with concrete slabs in a gravel bed. The windows and French doors are triple-glazed and have external or internal blinds, depending on their location. Underfloor heating and cooling ensure a pleasant temperature depending on the season. The apartments on the top floor are also equipped with Faincoil wall-mounted units.
On the ground floor there are two bicycle rooms, a baby carriage storage area and a games room. All apartments also have a storage room in the basement.
Architecture that breathes a sigh of relief.
The building is constructed to the low-energy house standard. The clinker brick façade is partially greened.
The heating and cooling supply for hot water and heating, as well as temperature control and air conditioning, is provided by the building's own heat pumps and evaporators on the green roof, supplemented by geothermal energy and photovoltaic systems.
A parking space can be rented for € 172.00 gross / month.
Facilities for e-charging stations are available.
Rendering ©A2K ARCHITEKTEN (symbolic image)
A project by ARE - Austrian Reals Estate (are.at)



























Due to its proximity to Längenfeldgasse (U4 and U6), the property has excellent public transport connections. The subway station can be reached in approx. 2 minutes on foot. The 10A, 12A and 63A buses are also just a few minutes' walk away. A Spar, a Billa, a bank branch, a petrol station, several fitness studios as well as several bars and restaurants are located in the immediate vicinity. Schönbrunn Palace Park is nearby and invites you to relax and soak up the sun in the greenery.
Wir sind eine Tochtergesellschaft der ÖRAG-Österreichische Realitäten AG, Wien, genannt ÖRAG, und es besteht daher unter Umständen ein sonstiges wirtschaftliches Naheverhältnis im Sinne des Maklergesetzes zur ÖRAG und ihren anderen Tochtergesellschaften in Österreich. Das Naheverhältnis zur ÖRAG ergibt sich zB aus der Tatsache, dass die ÖRAG das Objekt für den Eigentümer verwaltet. Es kann aber auch ein wirtschaftliches Naheverhältnis im Sinne des Maklergesetzes zum Auftraggeber, also dem bzw. den Eigentümern bestehen, wenn wir laufend bzw. regelmäßig für diesen Auftraggeber als Makler tätig werden. Sollten Sie diesbezüglich Fragen haben oder eine weitere Aufklärung wünschen, wenden Sie sich bitte direkt an unseren Mitarbeiter. Der guten Ordnung halber weisen wir darauf hin und halten fest, dass wir für den Auftraggeber (Vermieter) tätig werden.
Ein Maklervertrag mit dem wohnungssuchenden Mieter kommt nicht zustande, weswegen der Mieter auch bei erfolgreicher Vermittlungstätigkeit der ÖRAG nicht zur Zahlung einer Provision verpflichtet ist.
Weitere Immobilien finden Sie auf unserer Website www.oerag.at.