


Objektnummer: 109240977
Several commercial premises are available for rent in the mall area of the base zone in the Vienna Twin Towers on Wienerberg. The premises are multifunctional and can be used for gastronomy, retail, showrooms, etc. The building is accessible on all days of the week and there are various parking spaces available in the building's own garage.
Due to the office use in the building, there are also no noise pollution issues and synergies can be created with the existing tenants. Neighbors include Cineplexx, Grohe, Som Kitchen, Burger King and many more.
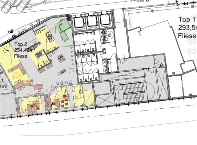
Available space on the ground floor:
Mall 30, approx. 98 m²
Top 2, approx. 250 m²
Top 6, approx. 305 m²
Top 11, approx. 290 m²
Net rent/m²/month: € 12.00 - € 14.00
Operating costs/net/m²/month: currently approx. € 8.50
Garage net/month incl. BK: € 155.00
High frequency
Accessible every day of the week
In-house garage


Streetcar line 1
Bus 7A, 7B, 15A, 63A, 65A, N62
Wir sind eine Tochtergesellschaft der ÖRAG-Österreichische Realitäten AG, Wien, genannt ÖRAG, und es besteht daher unter Umständen ein sonstiges wirtschaftliches Naheverhältnis im Sinne des Maklergesetzes zur ÖRAG und ihren anderen Tochtergesellschaften in Österreich. Das Naheverhältnis zur ÖRAG ergibt sich zB aus der Tatsache, dass die ÖRAG das Objekt für den Eigentümer verwaltet. Es kann aber auch ein wirtschaftliches Naheverhältnis im Sinne des Maklergesetzes zum Auftraggeber, also dem bzw. den Eigentümern bestehen, wenn wir laufend bzw. regelmäßig für diesen Auftraggeber als Makler tätig werden. Sollten Sie diesbezüglich Fragen haben oder eine weitere Aufklärung wünschen, wenden Sie sich bitte direkt an unseren Mitarbeiter.
Die ÖRAG Immobilien Vermittlung GmbH wird als Doppelmakler tätig.
Weitere Immobilien finden Sie auf unserer Website www.oerag.at.