
Object number: 505250162
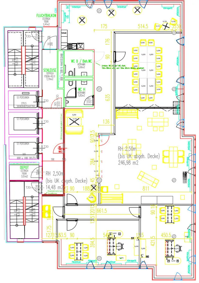
The space on offer extends over the 1st floor and the 5th-13th floors. According to the owner, the offices are in very good condition and are laid out differently according to the floor plans - some floors with smaller office units, some floors with larger meeting rooms.






Lastenstraße 36 is located east of Linz city center in a well-connected location not far from the main train station. The location offers very good connections to the public transportation network and the Wiener Straße & Prinz-Eugen-Straße highway on/off ramps. Restaurants and local shops are within walking distance. The property itself is in a condition commensurate with its age and has barrier-free access as well as a loading zone in front of the building. Parking spaces are available behind the property or in the underground garage.
Wir sind eine Tochtergesellschaft der ÖRAG-Österreichische Realitäten AG, Wien, genannt ÖRAG, und es besteht daher unter Umständen ein sonstiges wirtschaftliches Naheverhältnis im Sinne des Maklergesetzes zur ÖRAG und ihren anderen Tochtergesellschaften in Österreich. Das Naheverhältnis zur ÖRAG ergibt sich zB aus der Tatsache, dass die ÖRAG das Objekt für den Eigentümer verwaltet. Es kann aber auch ein wirtschaftliches Naheverhältnis im Sinne des Maklergesetzes zum Auftraggeber, also dem bzw. den Eigentümern bestehen, wenn wir laufend bzw. regelmäßig für diesen Auftraggeber als Makler tätig werden. Sollten Sie diesbezüglich Fragen haben oder eine weitere Aufklärung wünschen, wenden Sie sich bitte direkt an unseren Mitarbeiter.
Die ÖRAG Immobilien Vermittlung GmbH wird als Doppelmakler tätig.
Weitere Immobilien finden Sie auf unserer Website www.oerag.at.