
Object number: 10900076
The "Techbase Linz" will serve as an innovation and technology hub for modern and established companies, but will also provide space for young companies to develop and grow. The project will be built in 3 stages. Completion and occupation of the various construction phases is planned for 2022, 2023 and 2024. Construction has already begun.
A multifunctional business infrastructure will be provided that meets today's technical requirements. The urban planning concept envisages three boomerang-shaped buildings and a 10-storey building, which will integrate the existing central Siemens building (to be completely renovated) into the campus. All components are connected by walkways. The 10-storey building (Office Tower) stands as a striking high point in the north-west of the site, creating an enormous signal effect along the highway.
Completion of the components in 2024.
Office space - BT 1
Potential rental space: 1st floor with approx. 1,635 m² (divisible)
Office space - BT 3
Total possible rental space: 2nd floor and 3rd floor with approx. 3,262 m² (divisible)
Standard floor: approx. 1,631 m² (divisible)
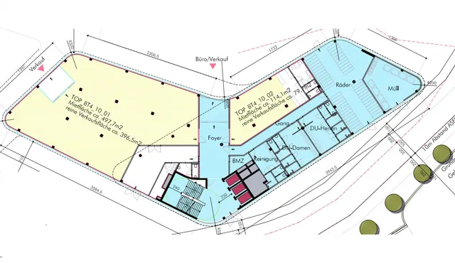
Office space - BT 4
Total possible rental space: ground floor, 1st floor to 6th floor with approx. 5,737 m² (divisible)
of which store area: approx. 612 m²
Standard floor office: 1st floor to 04th floor approx. 989 m²
Standard floor office: 5th floor to 06th floor approx. 584 m²
All offices are equipped with high-quality materials and climate control.





The project stands out due to its ideal location, as the necessary infrastructure is close by - streetcar, bus, highway access, shopping facilities, childcare facilities, etc. Linz main station is only four stops away on streetcar lines 1 and 2. Very good accessibility by car via the Mühlkreis highway via nearby exits and slip roads to the A7.
Wir sind eine Tochtergesellschaft der ÖRAG-Österreichische Realitäten AG, Wien, genannt ÖRAG, und es besteht daher unter Umständen ein sonstiges wirtschaftliches Naheverhältnis im Sinne des Maklergesetzes zur ÖRAG und ihren anderen Tochtergesellschaften in Österreich. Das Naheverhältnis zur ÖRAG ergibt sich zB aus der Tatsache, dass die ÖRAG das Objekt für den Eigentümer verwaltet. Es kann aber auch ein wirtschaftliches Naheverhältnis im Sinne des Maklergesetzes zum Auftraggeber, also dem bzw. den Eigentümern bestehen, wenn wir laufend bzw. regelmäßig für diesen Auftraggeber als Makler tätig werden. Sollten Sie diesbezüglich Fragen haben oder eine weitere Aufklärung wünschen, wenden Sie sich bitte direkt an unseren Mitarbeiter.
Die ÖRAG Immobilien Vermittlung GmbH wird als Doppelmakler tätig.
Weitere Immobilien finden Sie auf unserer Website www.oerag.at.