


Objektnummer: 109242565
The building with its green façade has a commercial space on the ground floor, 6 apartments each on the 1st and 2nd floors, 9 apartments on the 1st attic floor and 6 apartments on the 2nd attic floor.
The fittings are exquisite and modern.
The inviting façade is green, a clinker brick façade alternates excitingly with concrete, Eternit and glass elements. Triple-glazed wooden aluminum windows with external shading ensure energy efficiency.
All top-floor apartments also have air conditioning.
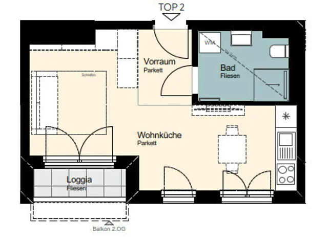
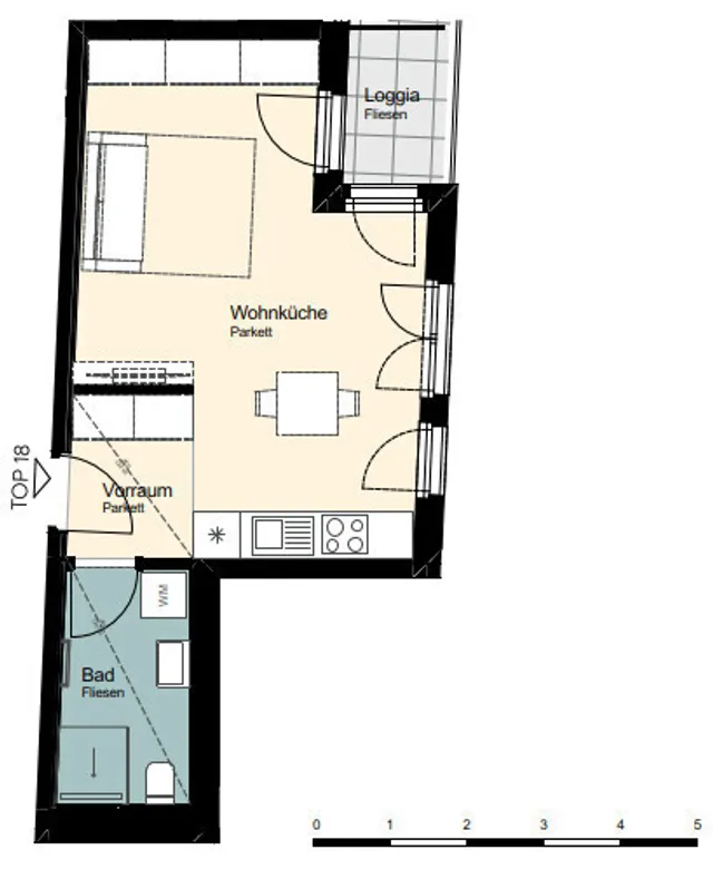
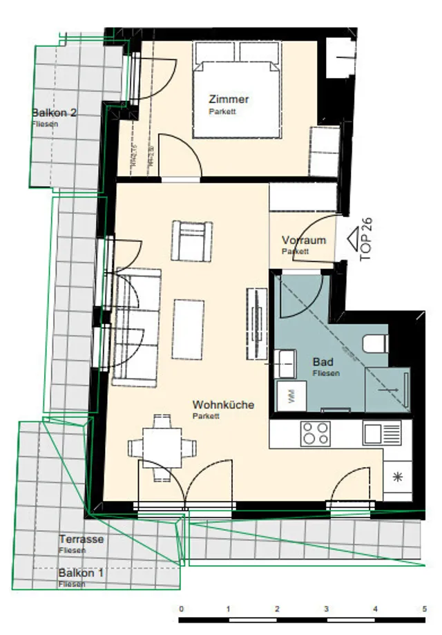
The individual apartments are equipped with high-quality Styrian parquet flooring, modern kitchens and elegant bathrooms with Duravit sanitary fittings.
The storage rooms, the bicycle and baby carriage storage area and the car parking spaces (some of which are also electric) are located in the basement and are easily accessible by elevator.
A games room and the garbage room are located on the ground floor.
The efficient and cost-effective energy supply is provided by a heat pump with deep drilling and a photovoltaic system. The building has been awarded ÖGNI Gold certification.
Denzel Immobilien GmbH
Toni Rappersberger










The location couldn't be better.
Close to the subway (U3), with streetcar (71) and bus line (N) on the doorstep, as well as the Gürtel/Landstraße highway exit, you are well connected to all transportation routes.
Simmeringer Hauptstraße offers a variety of shopping facilities, restaurants, kindergartens, schools and doctors within walking distance.
Wir sind eine Tochtergesellschaft der ÖRAG-Österreichische Realitäten AG, Wien, genannt ÖRAG, und es besteht daher unter Umständen ein sonstiges wirtschaftliches Naheverhältnis im Sinne des Maklergesetzes zur ÖRAG und ihren anderen Tochtergesellschaften in Österreich. Das Naheverhältnis zur ÖRAG ergibt sich zB aus der Tatsache, dass die ÖRAG das Objekt für den Eigentümer verwaltet. Es kann aber auch ein wirtschaftliches Naheverhältnis im Sinne des Maklergesetzes zum Auftraggeber, also dem bzw. den Eigentümern bestehen, wenn wir laufend bzw. regelmäßig für diesen Auftraggeber als Makler tätig werden. Sollten Sie diesbezüglich Fragen haben oder eine weitere Aufklärung wünschen, wenden Sie sich bitte direkt an unseren Mitarbeiter. Der guten Ordnung halber weisen wir darauf hin und halten fest, dass wir für den Auftraggeber (Vermieter) tätig werden.
Ein Maklervertrag mit dem wohnungssuchenden Mieter kommt nicht zustande, weswegen der Mieter auch bei erfolgreicher Vermittlungstätigkeit der ÖRAG nicht zur Zahlung einer Provision verpflichtet ist.
Weitere Immobilien finden Sie auf unserer Website www.oerag.at.